Mẫu thiết kế nội thất biệt thự sang trọng, đẳng cấp tại Hải Phòng
Sở hữu một căn biệt thự không chỉ là minh chứng của sự thành công mà còn là một không gian sống tiện nghi, thể hiện đẳng cấp của gia chủ. Tại Hải Phòng - một thành phố cảng năng động và phát triển, khiến nhu cầu thiết kế nội thất biệt thự ngày càng cao.
Trong bài viết này, nhà thầu Hải Thành sẽ giới thiệu đến bạn một trong những mẫu thiết kế nội thất mới nhất từ một gia chủ rất có gu. Hãy cùng chúng tôi khám phá điểm nổi bật từ căn biệt thự này nhé!
.jpg)
Khám phá mẫu thiết kế nội thất biệt thự tại Hải Phòng
Thông tin chung mẫu thiết kế nội thất biệt thự tại Hải Phòng
- Chủ đầu tư: Anh Thái
- Công trình: Biệt thự 4 tầng
- Diện tích xây dựng: 7x18m
- Phong cách thiết kế: Hiện đại
- Địa điểm thi công: Hải An - Hải Phòng
- Đơn vị thiết kế: CTCP Tư vấn và Xây dựng Hải Thành
Mặt bằng bố trí nội thất biệt thự tại Hải Phòng
Một trong những yếu tố then chốt để tạo nên vẻ đẹp và công năng của mỗi ngôi nhà chính là cách bố trí mặt bằng nội thất. Việc này không chỉ đảm bảo yếu tố thẩm mỹ mà còn tối ưu hóa diện tích sử dụng, tạo sự hài hòa trong phong thủy. Với ngôi biệt thự 4 tầng của gia đình anh Thái, mặt bằng nội thất được Hải Thành bố trí như sau:
- Tầng 1: Phòng khách, phòng bếp, nhà vệ sinh.
- Tầng 2: Sảnh chờ, phòng sinh hoạt chung, phòng ngủ master.
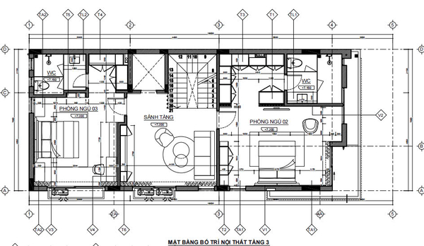
- Tầng 3: Sảnh chờ, phòng ngủ 2, phòng ngủ 3.
- Tầng 4: Phòng thờ, phòng tập gym, phòng giặt sấy, phòng kho.
.jpg)
Mặt bằng nội thất tầng 1 biệt thự hiện tại tại Hải Phòng
.jpg)
Mặt bằng nội thất tầng 2 biệt thự hiện tại tại Hải Phòng
(1).jpg)
Mặt bằng nội thất tầng 3 biệt thự hiện tại tại Hải Phòng
.jpg)
Mặt bằng nội thất tầng 4 biệt thự hiện tại tại Hải Phòng
>> Xem thêm: Mẫu thiết kế biệt thự 4 tầng hiện đại tại Hải Phòng
Phối cảnh 3D mẫu thiết kế nội thất biệt thự tại Hải Phòng
Để hình dung rõ hơn về mẫu thiết kế nội thất biệt thự của gia đình anh Thái, bạn đọc cùng khám phá các phối cảnh 3D sau nhé!
Qua quá trình trao đổi, mong muốn của chủ đầu tư là có một không gian sống mang đậm dấu ấn cá nhân, thể hiện sự đẳng cấp và sang trọng trong từng chi tiết nội thất. Do đó, đội ngũ Hải Thành đã lựa chọn thiết kế nội thất hoàn toàn bằng gỗ óc chó tự nhiên cho không gian biệt thự. Gỗ óc chó với gam màu nâu trầm ấm, đường vân uyển chuyển, cùng độ bền vượt thời gian vừa mang lại vẻ đẹp tinh tế, vừa góp phần tôn lên sự quý phái.
Nội thất phòng khách
Không gian phòng khách được thiết kế theo phong cách hiện đại với tone màu trung tính chủ đạo, kết hợp hài hòa giữa gỗ óc chó và đá marble vân mây. Ngoài ra, phòng khách còn được bố trí theo hướng mở kết nối trực tiếp với khu vực bàn ăn và bếp phía sau, tạo nên sự liền mạch.
.jpg)
Phòng khách với bộ ghế sofa cùng hệ tủ bằng gỗ óc chó sang trọng
>> Xem thêm: Mẫu thiết kế phòng khách liền bếp đẹp & hiện đại 2025
Nội thất phòng bếp
Thiết kế nội thất biệt thự bao giờ cũng đề cao không gian mở. Bởi vậy, phòng bếp của ngôi biệt thự được chúng tôi thiết kế thêm cửa phía sau, vừa tận dụng ánh sáng tự nhiên, vừa giúp hút mùi khi nấu ăn.
.jpg)
Không gian phòng bếp thông thoáng bằng việc tận dụng ánh sáng tự nhiên
.jpg)
Nội thất gồm bàn ăn và bản đảo tạo sự tiện nghi
Nội thất phòng sinh hoạt chung
.jpg)
Phòng sinh hoạt chung tầng 2 với bộ ghế sofa chữ L
.jpg)
Thiết kế nội thất biệt thự với phòng sinh hoạt chung nhỏ gọn tiện nghi
.jpg)
Sảnh chờ tầng 3
Nội thất phòng ngủ
.jpg)
Nội thất phòng ngủ 1 tầng 2
.jpg)
Nội thất phòng ngủ 2 tầng 3
.jpg)
Nội thất phòng ngủ 3 tầng 3
Nội thất phòng thờ
.jpg)
Thiết kế nội thất biệt thự với phòng thờ truyền thống ấm cúng, sang trọng
.jpg)
Phòng thờ được trang trí với các câu đối cổ xưa
Kết luận
Một mẫu thiết kế nội thất biệt thự sang trọng không chỉ đơn thuần là sự kết hợp hài hòa giữa màu sắc, vật liệu hay ánh sáng, mà còn là cách thể hiện đẳng cấp, cá tính riêng biệt của từng gia chủ. Trên đây là toàn bộ mẫu thiết kế nội thất biệt thự hiện đại của gia đình anh Thái mà Hải Thành muốn chia sẻ đến bạn. Hy vọng đây sẽ trở thành những ý tưởng hay trong dự án xây dựng tương lai của bạn nhé!
>> Xem thêm: Báo giá thiết kế thi công trọn gói tại Hải Phòng - Cập nhật chi tiết mới nhất 2025
Nếu bạn đang tìm kiếm một đơn vị thiết kế thi công trọn gói tại Hải Phòng, hãy liên hệ với chúng tôi ngay hôm nay!
Địa chỉ:
- Hải Phòng: Số 126 Hoàng Ngọc Phách, Kênh Dương, Lê Chân, TP Hải Phòng
- Quảng Ninh: Số 21 lô B đường Trần Thái Tông, phường Cao xanh, TP Hạ Long, Quảng Ninh
Hotline : 0904.140.582
Gmail: haithanhxaydung@gmail.com
Website: www.haithanh.vn
Tại Hải Phòng, mô hình nhà phố 5 tầng ngang 5m ngày càng phổ biến nhờ phù hợp với quỹ đất đô thị và mặt bằng công năng tối ưu, phù hợp ở kết hợp kinh doanh...
Phòng khách là không gian trung tâm của ngôi nhà, nơi thể hiện phong cách sống và gu thẩm mỹ của gia chủ. Một thiết kế phòng khách hiện đại không chỉ hướng đến ...
“Thiết kế nội thất văn phòng đẹp 2025” là từ khóa được nhiều chủ doanh nghiệp tìm kiếm gần đây. Vậy lợi ích của việc,...
Giữa những khu phố hiện đại, mẫu nhà phố mặt tiền gạch trần tại Hải Phòng nổi bật với vẻ đẹp mộc mạc, gần gũi và vô cùng cá tính. Thiết kế tối giản, chú trọng v...
Với quỹ đất mặt tiền hẹp 4-5m, việc tìm ra một mẫu nhà phố vừa đảm bảo thẩm mỹ, vừa tối ưu công năng là điều không dễ. Hiểu được điều đó, Xây dựng Hải Thành xin...
