Mẫu thiết kế nhà phố 5 tầng ngang 5m tại Hải Phòng đẹp năm 2026
Tại Hải Phòng, mô hình nhà phố 5 tầng ngang 5m ngày càng phổ biến nhờ phù hợp với quỹ đất đô thị và nhu cầu ở kết hợp kinh doanh. Tuy nhiên, để đảm bảo công năng, thẩm mỹ và khả năng thi công thực tế, việc lựa chọn phương án thiết kế ngay từ đầu là yếu tố quyết định.
Trong bài viết này, Hải Thành xin giới thiệu mẫu thiết kế nhà phố 5 tầng ngang 5m tại Hải Phòng, bao gồm phối cảnh 3D và mặt bằng công năng chi tiết. Hy vọng với những thông tin dưới đây, gia chủ sẽ có cái nhìn rõ ràng trước khi triển khai xây dựng.
.jpg)
Khám phá mẫu thiết kế nhà phố 5 tầng ngang 5m tại Hải Phòng
Thông tin chung mẫu nhà phố 5 tầng ngang 5m tại Hải Phòng
- Chủ đầu tư: Anh Hùng
- Công trình: Nhà phố 5 tầng
- Diện tích xây dựng: 5x14m
- Phong cách thiết kế: Hiện đại
- Địa điểm xây dựng: Lê Chân - Hải Phòng
- Đơn vị thiết kế: CTCP Tư vấn và Xây dựng Hải Thành
>> Xem thêm: Khám phá mẫu thiết kế nhà phố 3 tầng mặt tiền 5m hiện đại tại Hải Phòng
Phối cảnh 3D mẫu nhà phố 5 tầng ngang 5m tại Hải Phòng
Mẫu nhà phố 5 tầng ngang 5m tại Hải Phòng gây ấn tượng với phong cách thiết kế hiện đại, hình khối rõ ràng và tỷ lệ mặt đứng được xử lý tinh gọn. Tổng thể công trình sử dụng ngôn ngữ kiến trúc tối giản, nhưng vẫn tạo chiều sâu nhờ sự kết hợp giữa vật liệu và ánh sáng.
Theo đó, mặt tiền sử dụng gam màu chủ đạo trắng – xám, kết hợp các mảng ốp vật liệu tối màu ở tầng dưới giúp tăng cảm giác vững chắc cho công trình. Các chi tiết lam đứng và khung viền được bố trí xuyên suốt theo chiều cao. Điều này giúp tạo hiệu ứng thị giác giúp ngôi nhà trông cao và thanh thoát hơn. Đây là một giải pháp thường áp dụng cho nhà phố mặt tiền hẹp.
.jpg)
Phối cảnh chính diện mẫu nhà phố 5 tầng ngang 5m tại Hải Phòng
Hệ cửa chính và cửa sổ sử dụng nhôm kính khổ lớn, thiết kế đồng bộ theo từng tầng. Việc mở rộng diện tích kính không chỉ giúp tăng khả năng lấy sáng tự nhiên mà còn tạo sự kết nối giữa không gian bên trong và bên ngoài, hạn chế cảm giác bí bách thường gặp ở nhà phố.
Tầng 1 được thiết kế lùi vào nhẹ, kết hợp hệ đèn âm trần và vật liệu ốp đá, phù hợp với chức năng kinh doanh hoặc để xe. Trong khi đó, các tầng trên sử dụng ban công kính kết hợp lam chắn, vừa đảm bảo an toàn vừa tăng tính thẩm mỹ cho mặt tiền.
.jpg)
Hệ mặt đứng được tối ưu theo chiều cao, tăng hiệu ứng thị giác cho công trình
Một điểm nổi bật khác của mẫu nhà phố 5 tầng ngang 5m tại Hải Phòng là hệ thống chiếu sáng ngoại thất. Đèn được bố trí theo các lớp không gian: đèn âm trần tầng 1, đèn hắt ban công và đèn trang trí mặt đứng. Cách bố trí này không chỉ đảm bảo công năng chiếu sáng mà còn làm nổi bật các đường nét kiến trúc vào ban đêm.
>> Xem thêm: Khám phá nhà phố mặt tiền gạch trần độc đáo tại Hải Phòng
Mặt bằng công năng mẫu nhà phố 5 tầng ngang 5m tại Hải Phòng
Đối với nhà phố 5 tầng ngang 5m tại Hải Phòng, việc bố trí công năng hợp lý là yếu tố quan trọng, quyết định trực tiếp đến trải nghiệm sử dụng lâu dài. Với đặc thù mặt tiền hẹp, phương án tổ chức không gian cần đảm bảo sự thông thoáng, liên kết và tối ưu diện tích.
Công năng mẫu nhà được các kiến trúc sư Hải Thành đề xuất như sau:
- Tầng 1: Khu vực để xe + Phòng khách + Khu kinh doanh
- Tầng 2: Phòng bếp + Phòng ngủ 1
- Tầng 3: Phòng ngủ 2 + Phòng thay đồ
- Tầng 4: Phòng ngủ 3 + Phòng ngủ 4
- Tầng 5: Ban công + Phòng thờ + Phòng kho
.jpg)
Công năng tầng 1 mẫu nhà phố 5 tầng ngang 5m tại Hải Phòng
.jpg)
Công năng tầng 2 mẫu nhà phố 5 tầng ngang 5m tại Hải Phòng
.jpg)
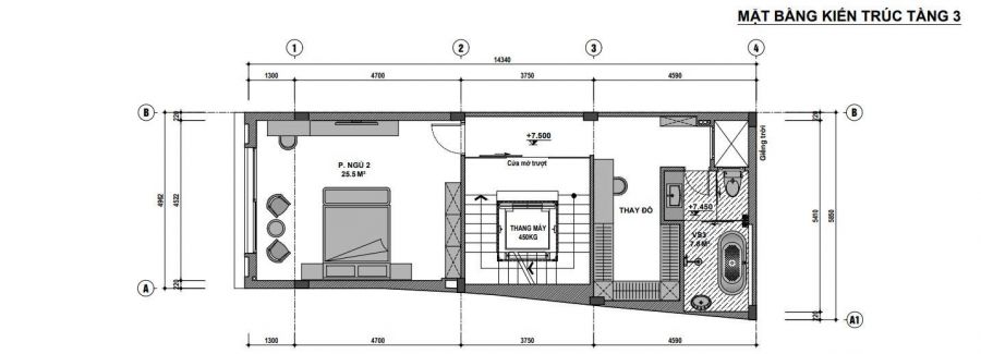
Công năng tầng 3 mẫu nhà phố 5 tầng ngang 5m tại Hải Phòng
.jpg)
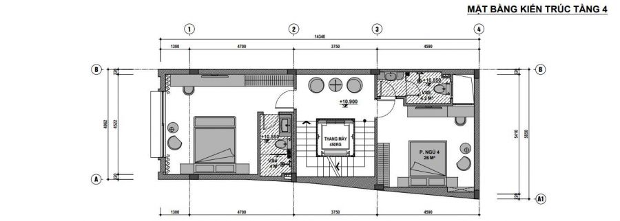
Công năng tầng 4 mẫu nhà phố 5 tầng ngang 5m tại Hải Phòng
.jpg)
Công năng tầng 5 mẫu nhà phố 5 tầng ngang 5m tại Hải Phòng
Cách bố trí này giúp phân tách rõ ràng giữa không gian sinh hoạt chung và riêng tư, đồng thời tận dụng tối đa diện tích sử dụng trên lô đất 5m mặt tiền. Bên cạnh đó, việc kết hợp giếng trời hoặc thông tầng ở khu vực giữa nhà sẽ giúp cải thiện ánh sáng và thông gió tự nhiên.
>> Xem thêm: Mẫu thiết kế nội thất biệt thự sang trọng, đẳng cấp tại Hải Phòng
Kết luận
Mẫu nhà phố 5 tầng ngang 5m tại Hải Phòng không chỉ gây ấn tượng với kiến trúc hiện đại, mặt tiền thanh thoát mà còn đảm bảo cách bố trí công năng hợp lý, phù hợp với nhu cầu ở kết hợp kinh doanh. Đây là giải pháp tối ưu cho các lô đất mặt tiền nhỏ nhưng vẫn yêu cầu cao về thẩm mỹ và hiệu quả sử dụng.
Hy vọng mẫu thiết kế trên sẽ là gợi ý hữu ích cho các gia chủ đang tìm kiếm phương án nhà phố 5 tầng ngang 5m tại Hải Phòng vừa đẹp, vừa thi công được trong thực tế.
Nếu bạn đang có kế hoạch xây dựng, hãy liên hệ Hải Thành để được tư vấn phương án phù hợp với lô đất và nhu cầu sử dụng.
Địa chỉ: Số 126 Hoàng Ngọc Phách, Kênh Dương, Lê Chân, TP Hải Phòng
Hotline: 0904.140.582
Gmail: haithanhxaydung@gmail.com
Website: xaydunghaithanh.com
Tại Hải Phòng, mô hình nhà phố 5 tầng ngang 5m ngày càng phổ biến nhờ phù hợp với quỹ đất đô thị và mặt bằng công năng tối ưu, phù hợp ở kết hợp kinh doanh...
Phòng khách là không gian trung tâm của ngôi nhà, nơi thể hiện phong cách sống và gu thẩm mỹ của gia chủ. Một thiết kế phòng khách hiện đại không chỉ hướng đến ...
“Thiết kế nội thất văn phòng đẹp 2025” là từ khóa được nhiều chủ doanh nghiệp tìm kiếm gần đây. Vậy lợi ích của việc,...
Giữa những khu phố hiện đại, mẫu nhà phố mặt tiền gạch trần tại Hải Phòng nổi bật với vẻ đẹp mộc mạc, gần gũi và vô cùng cá tính. Thiết kế tối giản, chú trọng v...
Với quỹ đất mặt tiền hẹp 4-5m, việc tìm ra một mẫu nhà phố vừa đảm bảo thẩm mỹ, vừa tối ưu công năng là điều không dễ. Hiểu được điều đó, Xây dựng Hải Thành xin...
